Terreno de 2.000 m² con chalet en Cunit
420.000 € 153 m2 construidos 3 habitaciones 2 baños
Cunit
Creando oportunidades
Donde otras personas ven solo un terreno con una casa, yo veo fantásticas oportunidades de inversión, con una excelente relación calidad-precio. Veo la posibilidad de construir otra casa a mi gusto, rodeada de bosque. Y visualizo las infinitas experiencias que allí tendría. También pienso en la posibilidad de construir dos chalets más –cada uno de ellos con jardín y piscina– para venderlos posteriormente. O simplemente disfrutar de esta casa toda en una planta y un jardín privado de 2 000 m2. En cualquier caso, las oportunidades no pasan solas: se visualizan, se crean y se disfrutan. Este es el proceso de un proyecto diferenciado de los demás.
Es especial por...
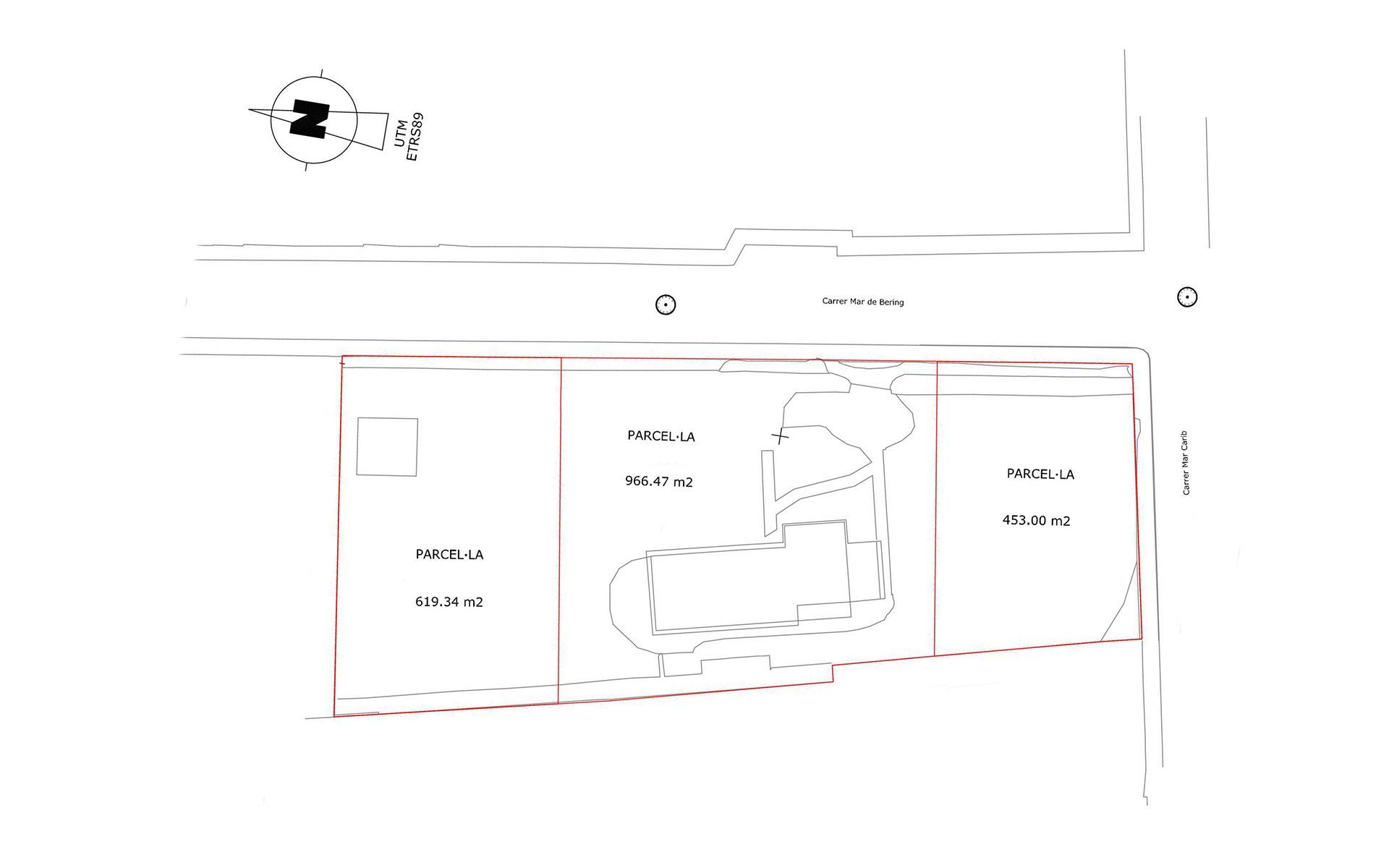
Terreno urbano de 2000 m² (conjunto de 3 parcelas)
Chalet todo en una planta de 153 m² construidos
Ubicación en Cunit residencial
Características:
- Terreno de 2.000 m² con chalet todo en una planta de 153 m² construidos a Cunit residencial.
- El terreno es urbano y es un conjunto de 3 parcelas. Disponible el informe topográfico.
- El chalet consta de un amplio recibidor, salón con chimenea, cocina independiente y lavadero, 3 habitaciones dobles con armarios empotrados más un espacio para un despacho o estudio y 2 baños completos.
- Casa a cuatro vientos con orientación principal al sureste.
- Construida en 1964. Dispone de calefacción de gas con radiadores, aire acondicionado, suelo de gres, carpintería interior y exterior de madera, fibra óptica y alarma.
- Está en una urbanización residencial, tranquila y selecta, a 2,2 km de la estación de Renfe de Cunit y a 1,2 km de la playa. Tiene una ubicación estratégica, a 60 km de Barcelona, 40 km de Tarragona y 50 km del aeropuerto del Prat, y con fácil conexión con las autopistas C32 y AP7.

































